HSB UITBREIDING TERHERNE

Terherne | Houtskeletbouw Uitbreiding | Gemeente DFM

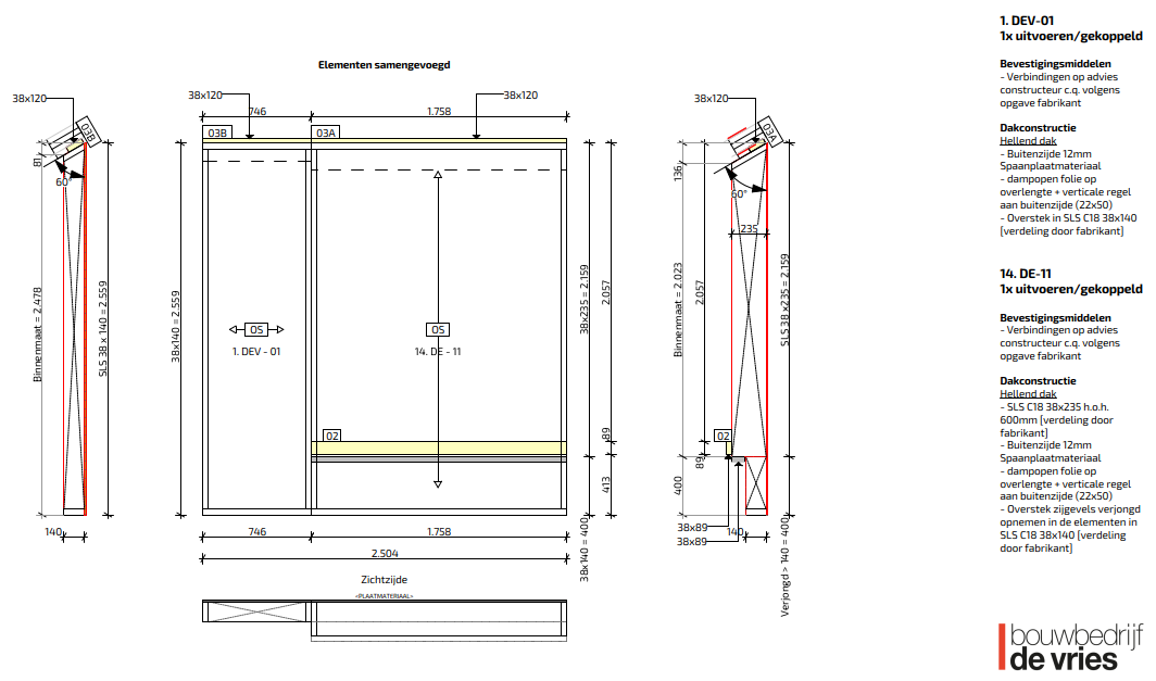
Voor dit project heeft Bouwbedrijf De Vries Builtec Engineering ingeschakeld voor het opstellen van de werktekeningen ten behoeve van de prefabricage van de houtskeletbouw-elementen. In nauwe samenwerking zijn de bouwkundige details afgestemd, technisch uitgewerkt en vertaald naar duidelijke productietekeningen.

Op basis hiervan zijn twee complete boekwerken samengesteld: een productieboekwerk voor de houtskeletbouwer en een montageboekwerk voor de uitvoering op de bouwplaats. Hierdoor konden de elementen efficiënt worden geproduceerd en probleemloos worden gemonteerd.

 

Het project verloopt voorspoedig en de montage van de houtskeletbouw-elementen sluit volledig aan bij de vooraf beoogde uitvoering. Een geslaagd project waarin voorbereiding, engineering en uitvoering naadloos op elkaar aansluiten.

Benieuwd naar onze referenties? Bekijk deze hier

en_USEnglish
"Let op: Builtec neemt momenteel géén particuliere opdrachten aan. Builtec werkt uitsluitend voor aannemers, ontwikkelaars en zakelijke klanten."
This is default text for notification bar